nanoCAD Конструкции PS 25
|
|
nanoCAD Конструкции PS - приложение к Платформе nanoCAD, автоматизирующее разработку документации разделов КЖ и КЖИ при проектировании зданий и сооружений.
Элементы чертежа автоматически маркируются и специфицируются благодаря использованию информационно-параметрических 2D-элементов.
Отдельно устанавливаемое приложение на Платформе nanoCAD
Продукт устанавливается на Платформу nanoCAD как специализированное решение. Это дает возможность использовать инструменты Платформы и функционал любого ее модуля: «СПДС», «3D», «Топоплан» и др.

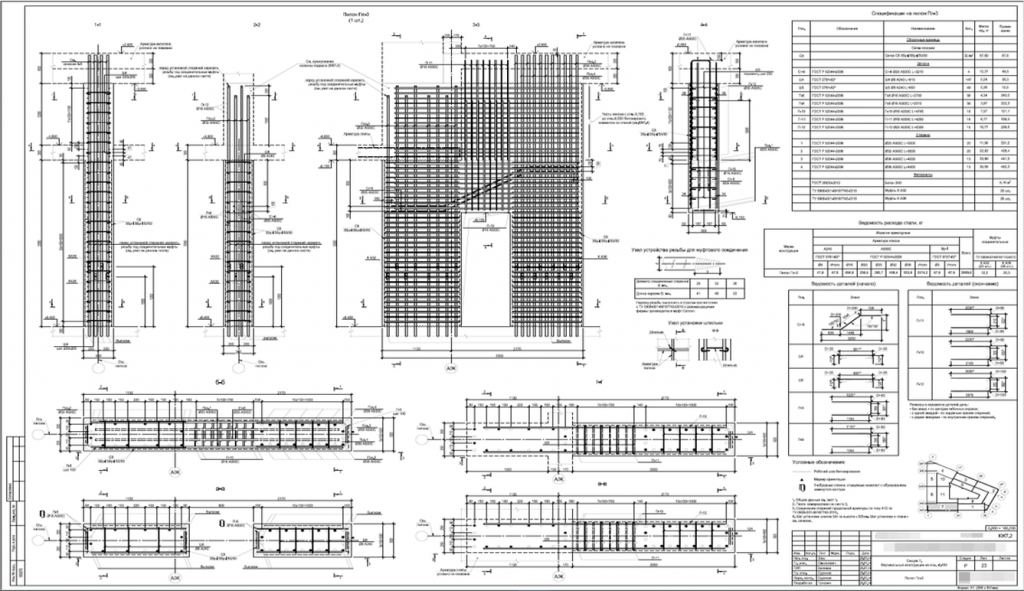
Модуль «КЖ»
В состав продукта входит модуль «КЖ», который позволяет разрабатывать рабочие чертежи марок КЖ и КЖИ в полном соответствии с российскими стандартами.

Модуль «Фундаменты»
Модуль служит для подготовки схем расположения и чертежей столбчатых фундаментов на свайном и естественном основании. Поддерживаются расчет основания по деформациям для фундаментов колонн промышленных и гражданских зданий, расчет свайного куста на прочность по несущей способности сваи и расчет монолитных и сборных ленточных фундаментов.
Модуль «Оформление»
В модуле представлены все необходимые инструменты оформления, что позволяет использовать для полноценной разработки документации только базовую Платформу nanoCAD.

Ускорение разработки документации за счет автоматизации
В основу приложения положена концепция использования информационно-параметрических 2D-элементов. Такие элементы содержат всю необходимую информацию как для формирования спецификаций, так и для графического представления на чертеже. Параметризация объектов позволяет формировать требуемое графическое представление только за счет изменения их свойств. Это обеспечивает значительное (до 30%) ускорение разработки документации благодаря уменьшению количества рутинных операций.
Простые в использовании, но мощные интеллектуальные инструменты
Благодаря легкости настройки и освоения программы не требуется проводить сложную процедуру стандартизации рабочего процесса. Диспетчер марок позволяет контролировать элементы, входящие в конструкцию, предоставляет возможность быстро получить необходимые спецификации в соответствии с заданными настройками, а также оперативно редактировать уже сформированную документацию.
В основу приложения положена концепция использования информационно-параметрических 2D-элементов. Такие элементы содержат всю необходимую информацию как для формирования спецификаций, так и для графического представления на чертеже. Параметризация объектов позволяет формировать требуемое графическое представление только за счет изменения их свойств. Это обеспечивает значительное (до 30%) ускорение разработки документации благодаря уменьшению количества рутинных операций.

Простые в использовании, но мощные интеллектуальные инструменты
Благодаря легкости настройки и освоения программы не требуется проводить сложную процедуру стандартизации рабочего процесса. Диспетчер марок позволяет контролировать элементы, входящие в конструкцию, предоставляет возможность быстро получить необходимые спецификации в соответствии с заданными настройками, а также оперативно редактировать уже сформированную документацию.

Библиотека
Программный продукт содержит встроенную базу сборно-железобетонных и арматурных элементов, открытую для редактирования и пополнения.

Назад в раздел







